Trilocale in vendita

Roma, Via di Vallerano - Valleranello
€ 285.000
3 locali 3 locali
70 Mq 70 Mq
2 bagni 2 bagni

Trilocale in vendita

Roma, Via di Vallerano - Valleranello

Descrizione annuncio

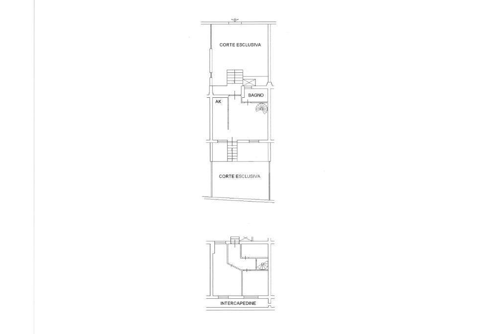
VALLERANO, via di Vallerano, si propone in vendita un immobile di recente costruzione, risalente al 2022. Questa abitazione si sviluppa su più livelli, offrendo una distribuzione degli spazi funzionale e moderna. La soluzione è composta da: due giardini, salone con angolo cottura e un bagno finestrato con doccia, al piano terra rialzato; disimpegno, due comode camere e bagno cieco con doccia, al piano seminterrato.

L’abitazione è ben rifinita ed è dotata di un box auto doppio di . 32 mq, che assicura comodità e sicurezza per il parcheggio. Questa soluzione abitativa rappresenta un’opportunità per chi cerca una residenza moderna e ben collegata al alla Pontina e vicino a tutti i servizi di prima necessità.

Mostra tutto

Nelle vicinanze

Trasporto pubblico Trasporto pubblico
Vallerano/Civico 89
Vallerano/Civico 89
240 m
Vallerano/Monaldi
Vallerano/Monaldi
270 m
Ricariche auto elettriche Ricariche auto elettriche
Roma Zaccagnini | EnelX
1,7 Km
Roma de Finetti | EnelX
1,7 Km
Roma Laurentina Edoardo Amaldi | ENELX FAST
1,7 Km
Scuole Scuole
Istituto Comprensivo "Marta Russo" - Sede di Vallerano
720 m
Liceo Classico Plauto
1,8 Km
Scuole
1,9 Km
Scuola Elementare "Paolo Renzi"
1,9 Km
Scuole
2,0 Km
Farmacia Farmacia
Farmacia
1,8 Km
Farmacia San Pietro
2,0 Km
Parafarmacia Conad
2,6 Km
Ospedali Ospedali
Pronto Soccorso
1,6 Km
Policlinico Universitario Campus Bio-Medico
1,7 Km
Istituto San Gallicano
2,4 Km
Istituti Fisioterapici Ospedalieri
2,4 Km
Supermercati Supermercati
Elite
1,4 Km
MD Discount
1,7 Km
Carrefour
2,2 Km
Panorama
2,4 Km
Supermercati
2,4 Km
Negozi Negozi
Rosy's Shop
2,1 Km
Negozi
2,4 Km
Bar Bar
Bar
2,2 Km
Ristoranti Ristoranti
La tana dei ricci
1,2 Km
La Saliera
1,3 Km
L'Arcobaleno
1,4 Km
Trattoria Laurentina
2,1 Km
Pizza & Sfizi
2,1 Km
Mostra tutto

Caratteristiche

Rif.:
61171746
Piano:
Su più livelli di 2
Totale piani:
2
Box:
1
Camere da letto:
2
Arredamento:
Parziale
Mostra tutto
Prezzo Prezzo
€ 285.000
Rata mutuo Rata mutuo
€ 1.359 / mese
Spese annue Spese annue
€ 600
Proponi il tuo prezzoProponi il tuo prezzo

Classe Energetica

A3
A3
A3
A3
A3
A3
A3
A3
A3
EP globale non rinnovabile:
50.84 kW h/m² anno
EP globale rinnovabile:
44.35 kW h/m² anno
EP invernale del fabbricato:
EP estiva del fabbricato:
Anno di costruzione:
2022
Riscaldamento:
Autonomo
Tipo impianto:
A radiatori
Tipo alimentazione:
Altro

Ti interessa visionare l'immobile?

Fissa un appuntamento  Fissa un appuntamento

Richiedi informazioni

Clicca su Leggi per aprire l'informativa
* Questi campi sono obbligatori

Calcola il tuo mutuo

Semplice e senza impegno
Anticipo

( % )
Mutuo

( % )

pochi semplici passi

inserisci i tuoi dati
Questionario completato
Grazie per aver richiesto un appuntamento senza impegno con un nostro Consulente del Credito e Assicurativo.

Hai inserito correttamente tutti i dati necessari e a breve riceverai una e-mail con un link da convalidare per inviare i tuoi dati.
Affiliato
Ires Immobiliare Srl
Via di Trigoria, 73 00128 Roma (RM)

Il nostro staff


  • Eleonora Del Papa
    Coordinatrice

  • Irene Zandel
    Affiliata

  • Stefano Fruci
    Affiliato
Via di Trigoria, 73 00128 Roma (RM)
Zona: Trigoria-Colle Dei Pini-Monte Migliore-Vallerano
Mostra su mappa
Orari: Dal Lunedì al Venerdì 09:00 - 19.30; il Sabato 09.00 - 13.00
Affiliato
Ires Immobiliare Srl
Via di Trigoria, 73 00128 Roma (RM)

2026 Tecnocasa Franchising S.p.A. - P. IVA 08365160152 - Via Monte Bianco 60/A 20089 Rozzano (MI). Ogni agenzia ha un proprio titolare ed è autonoma. Privacy policy | Policy utilizzo | Cookie policy