Porzione di bifamiliare in vendita

Roma, Via Quadrelle - Monte Migliore
€ 269.000
150 Mq 150 Mq
3 bagni 3 bagni

Porzione di bifamiliare in vendita

Roma, Via Quadrelle - Monte Migliore

Descrizione annuncio

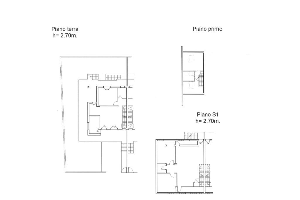
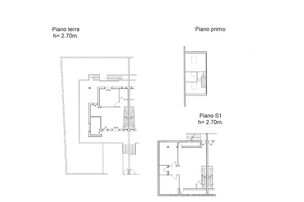
SELVOTTA, via Quadrelle, disponiamo di una porzione di villa bifamiliare su 3 livelli. L’immobile è così composto: al piano terra, da un comodo salone con angolo cottura, un bagno finestrato con doccia ed un giardino perimetrale (parte in manto pavimentato con portico e parte in manto erboso); al piano primo, da una camera da letto matrimoniale, un bagno finestrato con doccia, ed una cameretta; al piano seminterrato, da un ampio salone con angolo cottura, due camere da letto matrimoniali ed un bagno cieco con vasca. La soluzione si presenta in buone condizioni ed è dotata di videocitofono, infissi in legno con doppio vetro, serrande avvolgibili, grate antintrusione, allarme perimetrale, pavimentazione in gres, due stufe a pellet (una al piano terra ed una al seminterrato), un camino (uno al piano terra ed uno al piano seminterrato) e porta di accesso blindata. Immersa nella tranquillità, in un’oasi di pace e di verde in cui rifugiarsi dal caos della città che tuttavia rimane a pochi chilometri di distanza dal Pontina e Castelli Romani.

Mostra tutto

Nelle vicinanze

Trasporto pubblico Trasporto pubblico
Capodrise
Capodrise
80 m
Moschiano/Carife
Moschiano/Carife
110 m
Bar Bar
Bar
3,0 Km
Ristoranti Ristoranti
Villa Il Lago dei Cigni
2,6 Km
Hosteria Scalella
2,9 Km
Mostra tutto

Caratteristiche

Rif.:
61108023
Piano:
Su più livelli di 2
Totale piani:
2
Posti auto:
1
Terrazzi:
1
Camere da letto:
4
Mostra tutto
Prezzo Prezzo
€ 269.000
Rata mutuo Rata mutuo
€ 1.250 / mese
Spese annue Spese annue
€ 0
Proponi il tuo prezzoProponi il tuo prezzo

Classe Energetica

G
G
G
G
G
G
G
G
G
EP globale non rinnovabile:
204.46 kW h/m² anno
EP globale rinnovabile:
0.00 kW h/m² anno
EP invernale del fabbricato:
EP estiva del fabbricato:
Anno di costruzione:
2010
Riscaldamento:
Autonomo
Tipo impianto:
A stufa
Tipo alimentazione:
Altro

Ti interessa visionare l'immobile?

Fissa un appuntamento  Fissa un appuntamento

Richiedi informazioni

Clicca su Leggi per aprire l'informativa
* Questi campi sono obbligatori

Calcola il tuo mutuo

Semplice e senza impegno
Anticipo

( % )
Mutuo

( % )

pochi semplici passi

inserisci i tuoi dati
Questionario completato
Grazie per aver richiesto un appuntamento senza impegno con un nostro Consulente del Credito e Assicurativo.

Hai inserito correttamente tutti i dati necessari e a breve riceverai una e-mail con un link da convalidare per inviare i tuoi dati.
Affiliato
Ires Immobiliare Srl
Via di Trigoria, 73 00128 Roma (RM)

Il nostro staff


  • Irene Zandel
    Affiliata

  • Stefano Fruci
    Affiliato
Via di Trigoria, 73 00128 Roma (RM)
Zona: Trigoria-Colle Dei Pini-Monte Migliore-Vallerano
Mostra su mappa
Orari: Dal Lunedì al Venerdì 09:00 - 19.30; il Sabato 09.00 - 13.00
Affiliato
Ires Immobiliare Srl
Via di Trigoria, 73 00128 Roma (RM)

2026 Tecnocasa Franchising S.p.A. - P. IVA 08365160152 - Via Monte Bianco 60/A 20089 Rozzano (MI). Ogni agenzia ha un proprio titolare ed è autonoma. Privacy policy | Policy utilizzo | Cookie policy