Bifamiliare in vendita

Roma, Via Clarice Tartufari - Trigoria Alta
€ 490.000
Prezzo aggiornato
350 Mq 350 Mq
4 bagni 4 bagni

Bifamiliare in vendita

Roma, Via Clarice Tartufari - Trigoria Alta

Descrizione annuncio

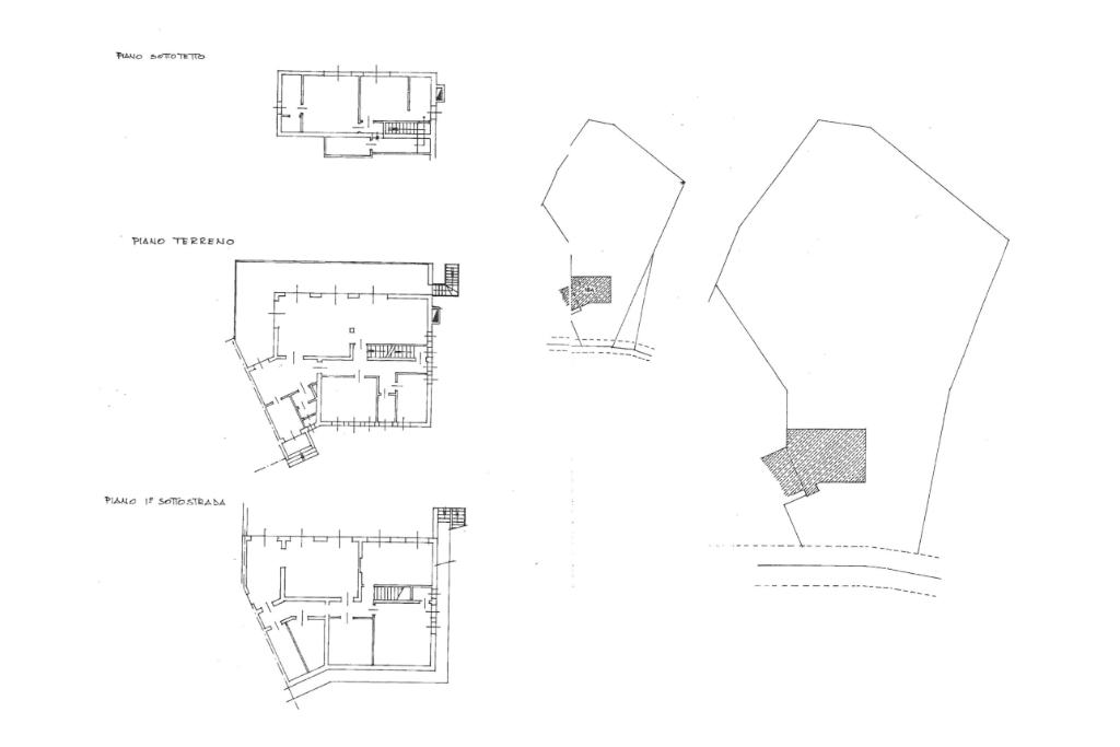
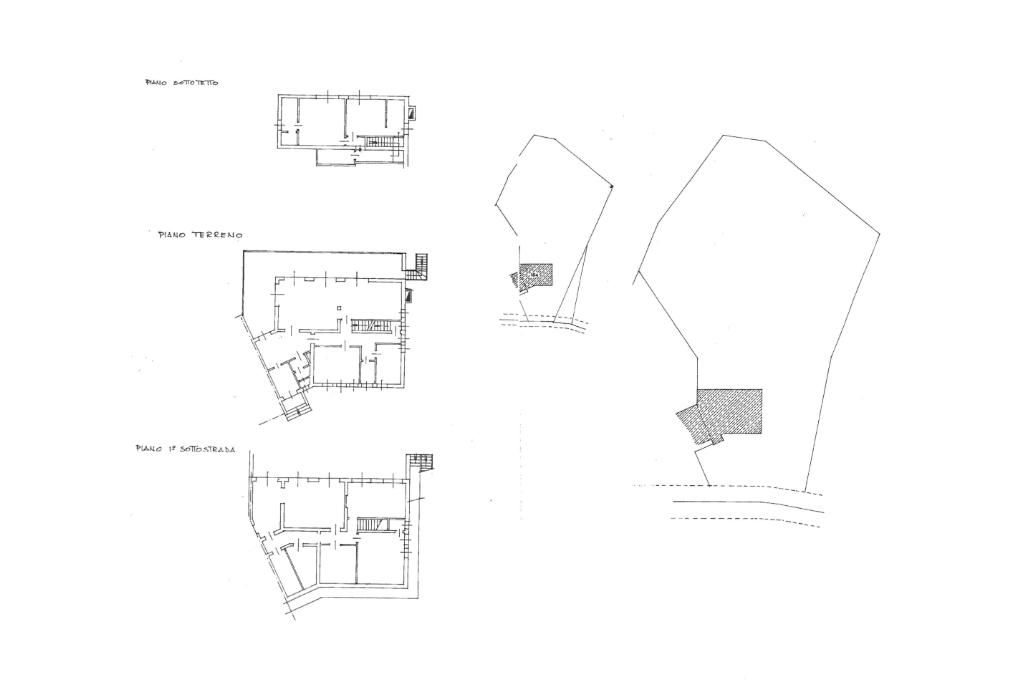
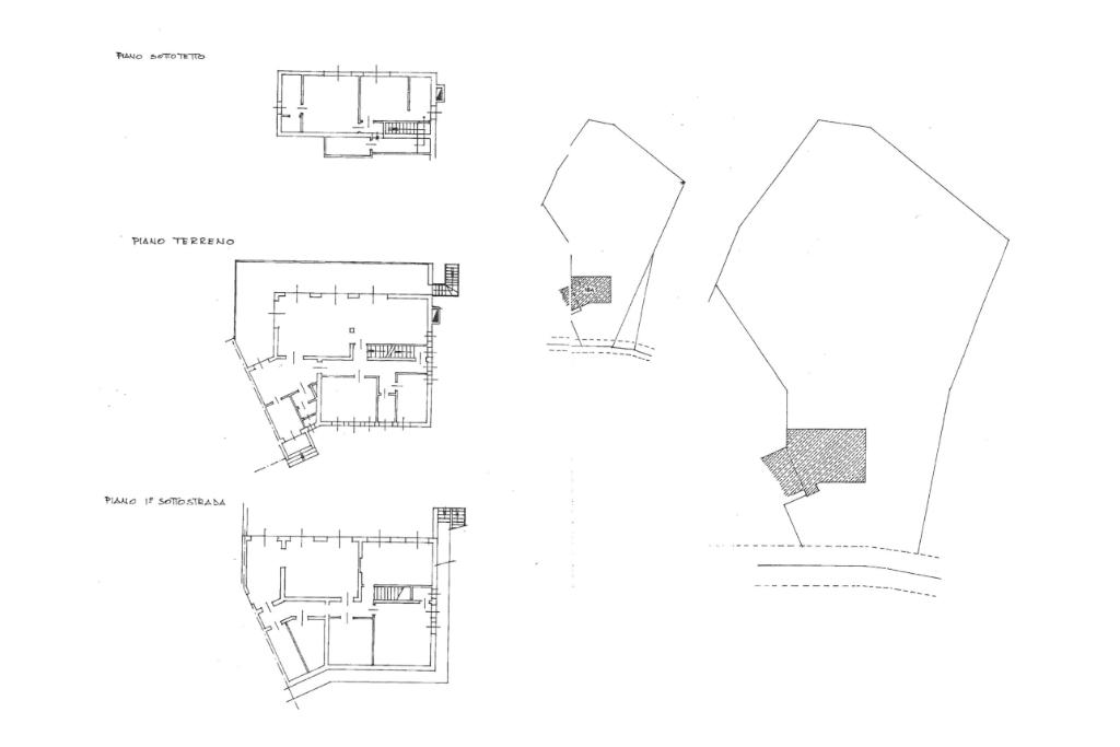
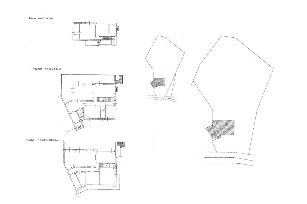
CASTEL DI DECIMA, via Clarice Tartufari, all’interno di un contesto riservato, silenzioso e immerso nel verde della riserva naturale della “Tenuta Vaselli”, proponiamo in vendita una villa che unisce comfort, privacy e ampi spazi funzionali per garantire una elevata qualità di vita. La proprietà si sviluppa su più livelli, con ambienti interni ben distribuiti e luminosi, capaci di garantire una quotidianità funzionale e accogliente. Al piano terra la zona giorno si apre con un luminoso salone doppio, ideale per accogliere momenti di convivialità, una cucina abitabile che rappresenta il cuore della casa, uno studio riservato, un bagno di servizio e una comoda camera da letto matrimoniale con bagno privato, perfetta come suite padronale o per ospiti. Il piano superiore è dedicato alla zona notte, con due ampie camere da letto e doppi servizi, che assicurano comfort e privacy a tutta la famiglia. Al piano seminterrato trovano spazio due ampi box auto, un locale lavanderia, un locale caldaia e un monolocale indipendente, ideale come dependance, alloggio per ospiti o zona hobby. La proprietà è circondata da un’area di pertinenza che offre spazi verdi e possibilità di realizzare zone relax, aree dedicate al tempo libero. L’ubicazione in un contesto residenziale tranquillo rende questa soluzione ideale per chi desidera vivere lontano dal caos cittadino. Un’opportunità perfetta per chi cerca una casa indipendente che coniughi riservatezza, spazi ampi e qualità di vita.

Mostra tutto

Nelle vicinanze

Trasporto pubblico Trasporto pubblico
Tartufari
Tartufari
40 m
Tartufari/Terranova
Tartufari/Terranova
630 m
Scuole Scuole
Scuola Elementare Santi Savarino
2,6 Km
Farmacia Farmacia
Parafarmacia Conad
2,8 Km
Supermercati Supermercati
Supermercati
2,7 Km
Conad
2,9 Km
Carrefour
2,9 Km
Bar Bar
Bar
2,4 Km
Ristoranti Ristoranti
Osteria del Malpasso
1,9 Km
Peperoncino Rosso
3,0 Km
Mostra tutto

Caratteristiche

Rif.:
61108979
Piano:
Su più livelli di 2
Totale piani:
2
Box:
2
Terrazzi:
1
Camere da letto:
3
Mostra tutto
Prezzo Prezzo
€ 490.000
Rata mutuo Rata mutuo
€ 2.337 / mese
Spese annue Spese annue
€ 816
Proponi il tuo prezzoProponi il tuo prezzo

Classe Energetica

G
G
G
G
G
G
G
G
G
EP globale non rinnovabile:
129.86 kW h/m² anno
EP invernale del fabbricato:
EP estiva del fabbricato:
Anno di costruzione:
1963
Riscaldamento:
Autonomo
Tipo impianto:
A radiatori
Tipo alimentazione:
Gasolio

Prezzo ridotto di €1 (6%%)

Ti interessa visionare l'immobile?

Fissa un appuntamento  Fissa un appuntamento

Richiedi informazioni

Clicca su Leggi per aprire l'informativa
* Questi campi sono obbligatori

Calcola il tuo mutuo

Semplice e senza impegno
Anticipo

( % )
Mutuo

( % )

pochi semplici passi

inserisci i tuoi dati
Questionario completato
Grazie per aver richiesto un appuntamento senza impegno con un nostro Consulente del Credito e Assicurativo.

Hai inserito correttamente tutti i dati necessari e a breve riceverai una e-mail con un link da convalidare per inviare i tuoi dati.
Affiliato
Ires Immobiliare Srl
Via di Trigoria, 73 00128 Roma (RM)

Il nostro staff


  • Eleonora Del Papa
    Coordinatrice

  • Irene Zandel
    Affiliata

  • Stefano Fruci
    Affiliato
Via di Trigoria, 73 00128 Roma (RM)
Zona: Trigoria-Colle Dei Pini-Monte Migliore-Vallerano
Mostra su mappa
Orari: Dal Lunedì al Venerdì 09:00 - 19.30; il Sabato 09.00 - 13.00
Affiliato
Ires Immobiliare Srl
Via di Trigoria, 73 00128 Roma (RM)

2026 Tecnocasa Franchising S.p.A. - P. IVA 08365160152 - Via Monte Bianco 60/A 20089 Rozzano (MI). Ogni agenzia ha un proprio titolare ed è autonoma. Privacy policy | Policy utilizzo | Cookie policy